Nissan X-Trail e-POWER Owners Manual | 2024
8.35.3. Bay parking

Stop the vehicle near the place you wish to park.
Push the ProPILOT Park switch.
ProPILOT Park activates.

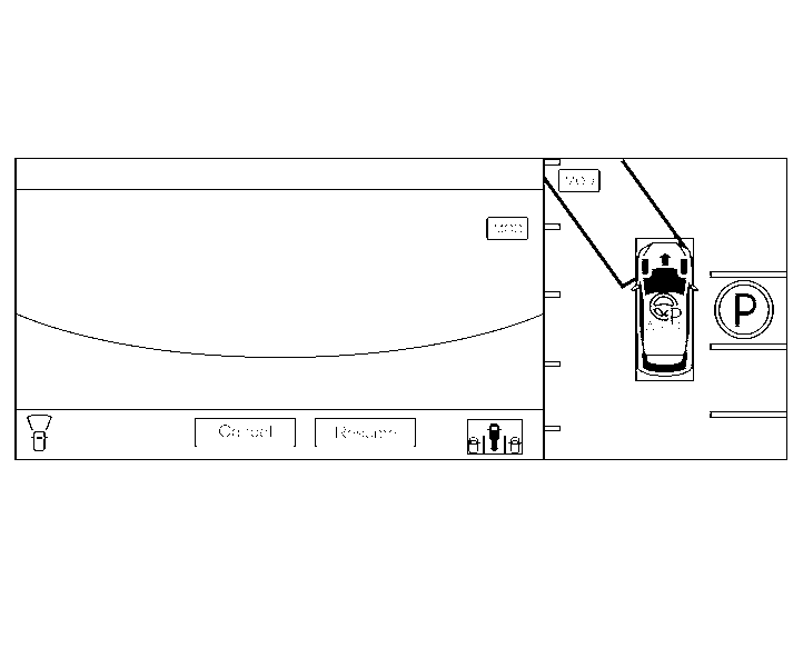
- A)Approximately 1 m (3 ft)
- B)Parking space search area guidelines (light blue)
Drive slowly forward and stop next to the desired parking space (at a distance of approximately 1 m (3 ft)).
Stop the vehicle so that the parking space detection icon
.
is pointing near the centre of the desired parking space. See Position the vehicle so that the end line of the parking space is in between the parking space search area guidelines (light blue) for easier detection.

While the vehicle is stopped, check that (P) is displayed in the desired parking space.
Check that it is possible to park in the space indicated by (P). Check that there are no obstacles in the parking space and the surrounding area, and check that the space is large enough to park in.

Keep the brake pedal depressed and touch [Start] on the screen.
The ProPILOT Park control icon
turns green and the brakes are applied automatically to keep the vehicle stopped. Parking control cannot be started if the system determines that movement to the parking position is not possible due to an obstacle detected by the parking sensors (sonar) and cameras.In that case, park the vehicle manually.

Release the brake pedal and the vehicle moves toward the direction change position rectangle (in the direction of the arrow on the vehicle icon).
Depress the brake pedal and adjust the vehicle speed depending on the surrounding conditions.

When the vehicle enters the direction change position rectangle (green), the shift position automatically changes and the vehicle moves backwards.
If it is not possible to proceed until the vehicle reaches the direction change position rectangle (green) because of an obstacle, depress the brake pedal, and stop the vehicle near the obstacle. Change the shift lever position to change the direction. Refer to
.
When the vehicle is in the parking guide box (light blue), the vehicle stops and parking control ends.
A sound and the display notify the driver when parking control ends.
At this time, the shift position changes to P (Park) and the electric parking brake is activated.
Parking control may end automatically before the vehicle is in the parking guide box (light blue). Refer to
.If it is not possible to reach the parking guide box due to an obstacle or some other reason, depress the brake pedal to stop the vehicle, then touch [Cancel] on the screen to deactivate ProPILOT Park. Park the vehicle manually or move the vehicle to a more suitable position.

ProPILOT Park can also be activated by pushing <CAMERA> button and then touching
on the Intelligent Around View Monitor screen.While ProPILOT Park is activated, the volume of the audio system and other sounds are reduced.
If the parking guide box does not display a position where parking is actually possible (due to the presence of an obstacle or a street gutter), manually set a suitable parking position. Refer to
.If the [Detect parallel spaces on either side] setting is activated and parking spaces are detected on both sides. The turn signal switch can be used to select the desired side if parking spaces on both sides are detected.
Even if the system detects the parking space once, the detected parking space may disappear or parking may not be started depending on the circumstances of obstacles such as the width of the aisle.
When parking control is started, the parking sensor (sonar) function automatically turns on. When ProPILOT Park deactivates, the parking sensor (sonar) returns to the condition that it was set to on the vehicle information display.
While parking control is active, the screen will not change even if [
] or [
] key is touched.Pushing the <CAMERA> button deactivates ProPILOT Park. For additional details, see
.Parking control cannot be started in the following cases. After the conditions are corrected, parking control can be started.
The driver's seat belt is not fastened.
The shift position is in P (Park).
The shift position is in R (Reverse).
The electric parking brake is activated.
The ESP system is turned off.
Parking control cannot be started when the vehicle is on a steep slope. Park the vehicle manually.
When the ProPILOT Park system changes the driving direction of the vehicle there is a slight pause.
Parking control may automatically end when the system determines that movement to the parking position is not possible due to an obstacle detected by the parking sensors (sonar) or cameras. Move the vehicle to a more suitable position.
If the Clearance Guidelines contact a parked vehicle or another obstacle, the parking sensor (sonar) may detect an obstacle and stops the vehicle, hindering the system from completing the parking procedure.
The turn signal is activated automatically, in the direction of the parking space when touching [Start] on the screen.
The route to the parking position and the number of steering cut backs vary depending on the set parking position and the position of the obstacles detected by the parking sensors (sonar) and cameras.
The [Unavailable. Mirrors in folded position] message may be displayed even though the mirror is open. In that case, close and open the mirror again.