Nissan X-Trail e-POWER Owners Manual | 2024
8.34.4. ProPILOT Park screen

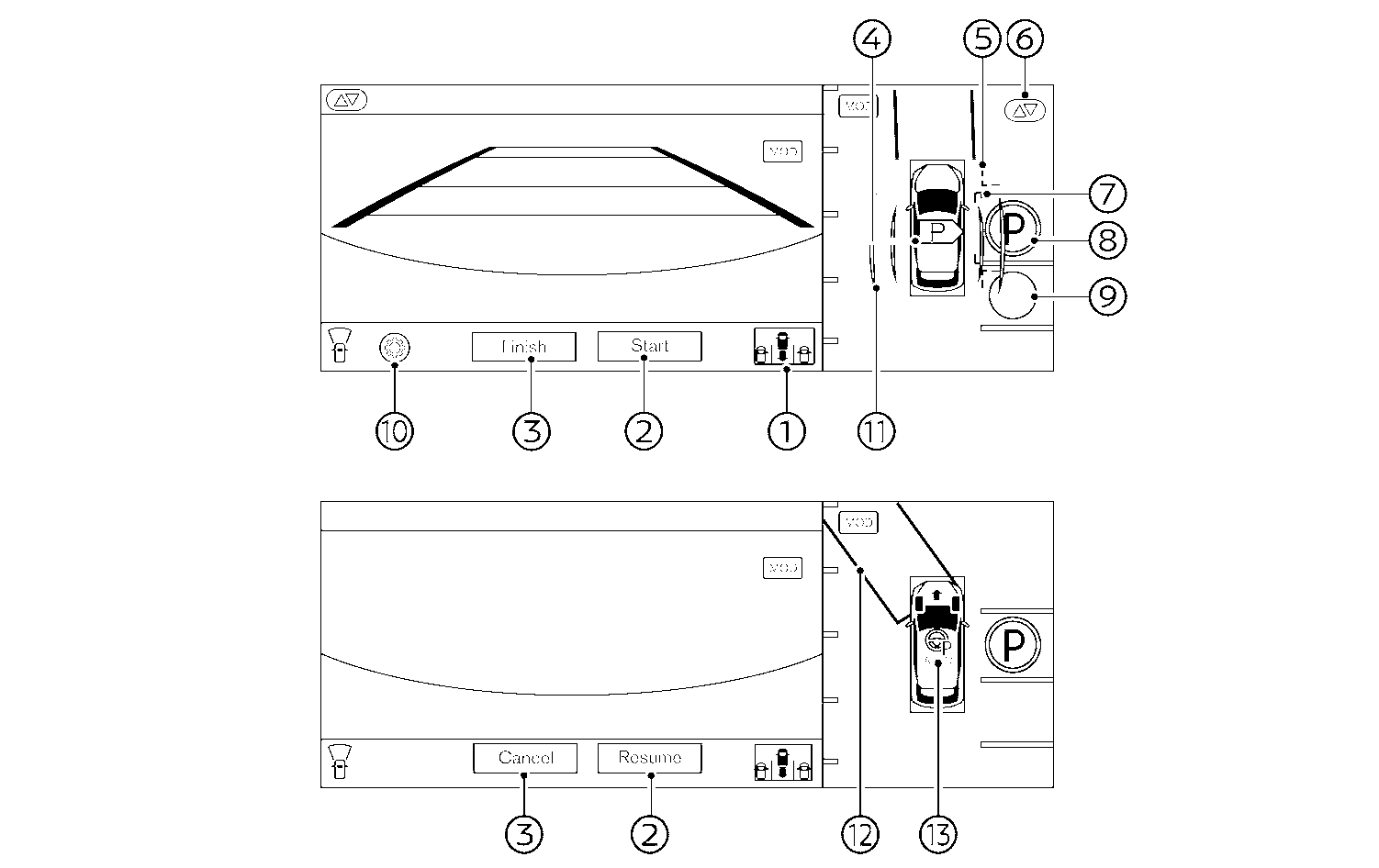
Parking method selection icon:
Indicates the parking method that is currently selected. Touch to change the parking method. Refer to
.[Start]/[Resume]:
Touch this key to start the ProPILOT Park control.
[Finish]/[Cancel]:
Touch this key to deactivate ProPILOT Park.
Parking space detection icon:
Indicates which side of parking space is detected during parking space search.
: A parking space is detected on the right side.
: A parking space is detected on the left side.Clearance Guidelines (red):
Indicates the approximate area that the vehicle will pass through when parking control is active.
Parking guide box adjustment icon (
):Touch this key to adjust the location of the parking guide box. Refer to
.Parking guide box (green):
This indicates the approximate position where the vehicle will be parked. The box turns light blue when parking control is active.
(P) sign (blue):
Indicates the position where the vehicle will be parked.
○ sign (colourless):
Indicates a selectable parking position besides the selected parking position. When touched, the icon will change to blue.
Settings icon (
):Touch this icon to change the ProPILOT Park settings.
Parking space search area guidelines (light green):
Indicates that the system is currently searching for a parking space. Lines are also used as a guide for vehicle positioning during space searching. Refer to
.Direction change position rectangle (green):
Indicates the position at which to make the next shift change.
ProPILOT Park control icon (
):The ProPILOT Park control status is indicated by colours.
Green: The parking control is active.
Grey: The parking control is not active.

When the wipers are operating or when water or other substances on the camera lens is detected, the
sign is displayed. When the ${1} sign is displayed, the detectable parking positions are restricted.